arch.JarosławPawlak - koncepcje z wizualizacjami, projekty budowlane i realizacyjne, inwentaryzacje, analizy architektoniczne, koordynacja branż -
kopiowanie i wykorzystywanie materiałów zawartych na tej stronie bez zgody autora SUROWO ZABRONIONE !!!

 
M1


MGR INŻ. ARCH.
JAROSŁAW PAWLAK
tel. nr:  +48 502 611 992
e-mail:  jaroslaw@pawlakprojekt.pl  


PRZEBUDOWY - OBIEKTY ISTNIEJĄCE   /  UŻYTECZNOŚĆ  PUBLICZNA

ZARZĄDZANIE
KIEROWANIE PROJEKTEM
KOORDYNACJA BRANŻ
PROJEKTY
OBIEKTY NOWE
PRZEBUDOWY
OBIEKTY ISTNIEJĄCE
POWRÓT STR.GŁ.
KONCEPCJE
& INWENTARYZACJE
CURRICULUM
VITAE

UŻYTECZNOŚĆ
PUBLICZNA
POWRÓT



KONCEPCJA PRZEPROJEKTOWANIA ELEWACJI BUDYNKU KANCELARII Z DOMEM DWURODZINNYM, pow. ok.500 m2, ŁÓDŹ.
KANCELARIAKANCELARIAKANCELARIAKANCELARIAKANCELARIAKANCELARIAKANCELARIA
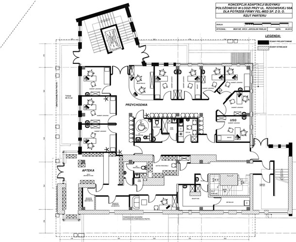
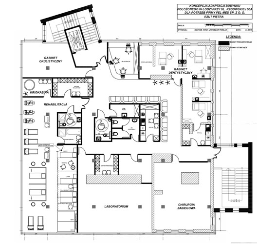
KONCEPCJA PRZEBUDOWY BUDYNKU RESTAURACJI NA ZAKŁAD OPIEKI ZDROWOTNEJ, pow. ok.900 m2, ŁÓDŹ.
LAJK 1LAJK 2LAJK 3LAJK 4LAJK 5LAJK 6LAJK 7
KONCEPCJA I PROJEKT BUDOWLANY Z POZWOLENIEM NA BUDOWĘ PRZEBUDOWY PRZEDSZKOLA NA ZAKŁAD OPIEKI ZDROWOTNEJ, pow. ok.1100 m2, ŁÓDŹ - BAŁUTY.
MED 3MED 1MED 2MED 4MED 5MED 6MED 7MED 8
KONCEPCJA I PROJEKT BUDOWLANY Z POZWOLENIEM NA BUDOWĘ PRZEBUDOWY I ROZBUDOWY ZAKŁADU OPIEKI ZDROWOTNEJ, pow. ok.370 m2, KONSTANTYNÓW ŁÓDZKI.
KONS 1KONS 3KONS 4KONS 5KONS 2KONS 8KONS 7KONS 9KONS 6
KONCEPCJA I PROJEKT BUDOWLANY ZE ZMIANĄ SPOSOBU UŻYTKOWANIA Z POZWOLENIEM NA BUDOWĘ PRZEBUDOWY LOKALI HANDLOWYCH NA GASTRONOMICZNY, pow. ok.70 m2, ŁÓDŹ.
PIERO 1PIERO 2PIERO 3PIERO 4PIERO 5PIERO 6PIERO 7


*  PROJEKTY  WIELOBRANŻOWE BUDOWLANE I REALIZACYJNE
*  KOORDYNACJA BRANŻ - ZARZĄDZANIE  PROJEKTEM
*  POZWOLENIA BUDOWLANE  - ODSTĘPSTWA P.- POŻAROWE - UZGODNIENIA BHP I SANEPID
*  KONSULTACJE I DORADZTWO  PROJEKTOWE
*  PROJEKTY  OBIEKTÓW UŻYTECZNOŚCI PUBLICZNEJ
*  PROJEKTY OSIEDLI I  BUDYNKÓW ZAMIESZKANIA ZBIOROWEGO
*  PROJEKTY ZAKŁADÓW OPIEKI ZDROWOTNEJ
*  PROJEKTY DOMOW JEDNORODZINNYCH
*  PROJEKTY WNĘTRZ LOKALI I MIESZKAŃ
*  PROJEKTY  ELEWACJI
*  PRZEBUDOWY, ROZBUDOWY I NADBUDOWY WRAZ ZE ZMIANĄ  SPOSOBU UŻYTKOWANIA
*  INWENTARYZACJE OBIEKTÓW BUDOWLANYCH I LOKALI
*  NADZORY AUTORSKIE REALIZOWANYCH INWESTYCJI

stronę wykonał arch. Jarosław Pawlak przy pomocy  programu KompoZer / zamieszczone projekty i dokumentacje wykonane w oficjalnie zakupionym programie ArchiCad
kopiowanie i wykorzystywanie danych zawartych na tej stronie bez zgody autora SUROWO ZABRONIONE !!! *** Copyright Jarosław Pawlak, All Rights Reserved / Privacy policy ***